> 제품소개 > 공기조화기
실내의 환경을 적정한 온.습도 및 청정도를 유지하기 위해 실외기(냉동기)를 가동하게 됩니다.
이때 실외기에서 아까운 열에너지가 버려지게 되는데, 이 에너지를 재활용하여 별도의 에너지 공급없이 물을 증발시켜 습도조절 및 공기를 가열하여 항상 일정한 온.습도를
유지할 수 있게 만든 신기술의 제품을 하이브리드 항온항습기라고 합니다.
사이펀 히트파이프 구조
공조기 내부에 배기구와 외기도입구에 사이펀 히트 파이프열 교환기를 설치하여 폐열을 회수하는 열교환시스템

에너지 재활용(폐열회수)
공기조화기 운전과정에서 발생되는 배기열에서 폐열을 회수하여 Re-Cycle하는 고효율 공조시스템

설비의 내구성
동력장치를 사용하지 않고, 반영구적으로 폐열을 회수하는 Re-Cycle 설비 시스템이다.

친환경 설비
열은 높은 곳에서 낮은 곳으로 이동하는 자연현상을 이용한 친환경 히트파이프 회수장치를 채택한 설비 시스템이다.

초기투자비 절감
폐열회수를 통하여 공기조화기의 열원설비 및 전기수전설비의 용량을 축소하여 초기설비 투자비를 절감

간편한 유지보수
별도의 소모품을 사용하지 않고, 간단한 청소만으로 유지보수가 이루어진다.
예) 우주선, PC의 냉각장치

설치의 편리성
공조기 내부에 장착으로 급ㆍ배기 덕트의 위치에 관계없이 설치가 편리함
사이펀 히트파이프 원리
히트파이프는 밀폐된 진공 파이프에 작동유체를 주입하여 양 끝단에 온도차가 발생하게 하면, 파이프 내부에서 열평형을 이루고자 연속적으로 기체-액체의 상변화 과정을 통하여, 열을 운반하는 장치로 사용하는데, 동력을 사용하지 않고, 매우 큰 열을 운반할 수 있는 특징을 가지므로 고효율 열교환기로 적합하다.
그림과 같이 히트파이프의 구조는 밀폐된 파이프와 냉매, 파이프 내부의 모세관으로 이루어 지며, 윅(Wick)의 재질, 형상종류의 따라 냉매의종류 액체의 귀환 방법 내부의 기하학적 형태 작동 온도 등에 따라 다양하게 분류 된다. 액체의 귀환이 모세관에 의하여 이루어지는 것을 히트파이프라고 부르나 중력 또는 원심력등 여러가지 방법에 의하여 이루어지기도 하며 이를 통칭하여 히트파이프라 부르기도 한다.
사이펀 히트파이프 특징
히트파이프 내부에 작동유체를 충전하고 한 쪽끝을 배열과 접촉시키면 파이프 반대쪽에서 음속에 가까운 속도로 열이 이동하는 특성을 가지며, 열 이동은 구리에 비하여 열전도율이 약 1,000배에 이르는 우수한 열전도 특성을 갖는다.
2) 밀폐된 용기에 작동유체를 연속적으로 자연순환하는 사이클로 구성되어 반영구적으로 사용할 수 있다.
3)대기중에 방사되는 배기 에너지를 별도의 동력장치를 사용하지 않고, 폐열을 회수하는 친환경적 에너지 절감 시스템이다.
| 구 분 | Heat Pipe Type | Rotary Honey Comb | Plate Type |
|---|---|---|---|
| 구조 및 형상 |
![]() |
![]() |
![]() |
| 원리 | 진공파이프 내부에 작동유체의 상변화 현상을 이용한 열교환방식 |
허니컴 로터의 표면에서 열을 흡수하여, 급기측에 열전달하는 방식 |
판과 판 사이에 유체를 통과시켜 열전달하는 방식 |
| 열교환 소자 |
동관, 동핀, 작동유체 | 특수가공여재, 구동장치 | 알루미늄판(동판, 폴리프로필렌) |
| 장ㆍ단점 | 열회수 효율이 우수함 수명이 반영구적임 열전달 속도가 빠르다 소형으로 제작가능 유지보수비 거의 없다 전원 사용하지 않음 |
열회수 효율이 가장 우수 구동장치 및 전원공급 필요 결로 및 동결 대비책 필요 필터교체 비용 발생 설치공간이 제한적이다 전원이 필요하다 |
열회수 효율이 중간 수명이 사용조건에 제한적 열전달 속도가 느리다 유지보수가 어렵다 다소 설치공간에 제한적이다 전원을 사용 |
| 유지보수 | 간단(물 세척) | 곤란(교체 필요) | 복잡(적층먼지제거) |
| 설비비 | 중 | 고 | 중 |
공기조화기 표준사양 (SYPHON A.H.U)
| 규격/모델명 | T1AH-S0045 | T1AH-S0100 | T1AH-S0150 | T1AH-S0200 | |||
|---|---|---|---|---|---|---|---|
| 표 준 풍 량 | m3/min | 42 | 100 | 150 | 200 | ||
| m3/h | 2,520 | 6,000 | 9,000 | 12,000 | |||
| 풍 량 범 위 | m3/min | 38~50 | 82~119 | 123~178 | 164~238 | ||
| m3/h | 2,268~ | 4910~ | 7,360~ | 9,810~ | |||
| 3,024 | 7,130 | 10,690 | 14,250 | ||||
| 송풍기 | 급기 | Air-Foil | #DS | 1 1/2 | 2 1/2 | 3 | 3 1/2 |
| 전동기 | Kw | 0.55 | 3.8 | 5.6 | 5.6 | ||
| 정압 | mmAq | 20 | 100 | 100 | 100 | ||
| PA | 196 | 980 | 980 | 980 | |||
| 환기 | Sirocco | #DS | 1 1/2 | 2 | 2 1/2 | 3 | |
| 전동기 | Kw | 0.55 | 2.3 | 3.8 | 3.8 | ||
| 정 압 | mmAq | 10 | 45 | 45 | 45 | ||
| PA | 98 | 441 | 441 | 441 | |||
| 코일 | 냉방능력 | 냉수 | Kcal/h | 6,992 | 35,000 | 68,000 | 85,000 |
| Kw | 8.1 | 40.7 | 79.1 | 98.8 | |||
| 난방능력 | 증기 | Kcal/h | - | 63,000 | 112,000 | 139,000 | |
| Kw | - | 73.3 | 130.2 | 161.6 | |||
| 온수 | Kcal/h | 17,749 | 52,000 | 93,000 | 115,000 | ||
| Kw | 20.6 | 60.5 | 108.1 | 133.7 | |||
| 치수 | Pass(H) | 16(610) | 16(610) | 24(914) | 30(1,143) | ||
| xLx수량 | x610x1 | x1100x1 | x1100x1 | x1200x1 | |||
| 정면 면적 | m2 | 0.37 | 0.67 | 1.01 | 1.37 | ||
| 폐열회수 열교환기 | 형식 | - | Syphon Heat Pipe | ||||
| 배기풍량 | m3/min | 12.6 | 30 | 45 | 60 | ||
| 외기풍량 | m3/min | 12.6 | 30 | 45 | 60 | ||
| 필터 | 배열 | 단 x 열 | 1 x 1 | 1 x 2 | 1.5x 2 | 2 x 2 | |
| 610 x 610 | EA | 1 | 2 | 2 | 4 | ||
| 305 x 610 | EA | 0 | 0 | 2 | 0 | ||
| 305 X 305 | EA | 0 | 0 | 0 | 0 | ||
| 정면면적 | m2 | 0.37 | 0.74 | 1.12 | 1.49 | ||
| 표준가습량 | Kg/h | 5 | 15 | 22 | 25 | ||
| 접속관경 | 냉.온 수입출구관 | Ax수량 | 32x1 | 32x1 | 50x1 | 65x1 | |
| 증기 공급관 | Ax수량 | - | 40x1 | 50x1 | 50x1 | ||
| 증기 환수관 | Ax수량 | - | 25x1 | 32x1 | 32x1 | ||
| 규격/모델명 | T1AH-S0250 | T1AH-S0300 | T1AH-S0350 | T1AH-S0400 | |||
|---|---|---|---|---|---|---|---|
| 표 준 풍 량 | m3/min | 250 | 300 | 350 | 400 | ||
| m3/h | 15,000 | 18,000 | 21,000 | 24,000 | |||
| 풍 량 범 위 | m3/min | 204~297 | 245~356 | 286~416 | 327~475 | ||
| m3/h | 12,260~ | 14,710~ | 17,160~ | 19,610~ | |||
| 17,820 | 21,380 | 24,940 | 28,500 | ||||
| 송풍기 | 급기 | Air-Foil | #DS | 3 1/2 | 4 | 4 | 4 1/2 |
| 전동기 | Kw | 7.5 | 11.3 | 11.3 | 15.0 | ||
| 정압 | mmAq | 100 | 100 | 100 | 100 | ||
| PA | 980 | 980 | 980 | 980 | |||
| 환기 | Sirocco | #DS | 3 1/2 | 3 1/2 | 4 | 4 | |
| 전동기 | Kw | 5.6 | 5.6 | 7.5 | 7.5 | ||
| 정 압 | mmAq | 45 | 45 | 45 | 45 | ||
| PA | 441 | 441 | 441 | 441 | |||
| 코일 | 냉방능력 | 냉수 | Kcal/h | 105,000 | 120,000 | 140,000 | 180,000 |
| Kw | 122.1 | 139.5 | 162.8 | 209.3 | |||
| 난방능력 | 증기 | Kcal/h | 169,000 | 212,000 | 254,000 | 278,000 | |
| Kw | 196.5 | 246.5 | 295.3 | 323.3 | |||
| 온수 | Kcal/h | 140,000 | 175,000 | 210,000 | 230,000 | ||
| Kw | 162.8 | 203.5 | 244.2 | 267.4 | |||
| 치수 | Pass(H) | 32(1,219) | 32(1,219) | 32(1,219) | 32(1,219) | ||
| xLx수량 | x1400x1 | x1650x1 | x1950x1 | x2200x1 | |||
| 정면 면적 | m2 | 1.71 | 2.01 | 2.38 | 2.68 | ||
| 폐열회수 열교환기 |
형식 | - | |||||
| 배기풍량 | m3/min | 75 | 90 | 105 | 120 | ||
| 외기풍량 | m3/min | 75 | 90 | 105 | 120 | ||
| 필터 | 배열 | 단 x 열 | 2 x 2.5 | 2 x 3 | 2 x 3.5 | 2 x 3.5 | |
| 610 x 610 | EA | 4 | 6 | 6 | 6 | ||
| 305 x 610 | EA | 2 | 0 | 2 | 2 | ||
| 305 X 305 | EA | 0 | 0 | 0 | 0 | ||
| 정면면적 | m2 | 1.86 | 2.23 | 2.60 | 2.60 | ||
| 표준가습량 | Kg/h | 30 | 35 | 38 | 50 | ||
| 접속관경 | 냉.온 수입출구관 | Ax수량 | 65x1 | 65x1 | 80x1 | 80x1 | |
| 증기 공급관 | Ax수량 | 50x1 | 65x1 | 80x1 | 80x1 | ||
| 증기 환수관 | Ax수량 | 32x1 | 40x1 | 40x1 | 40x1 | ||
| 규격/모델명 | T1AH-S0450 | T1AH-S0500 | T1AH-S0600 | T1AH-S0700 | |||
|---|---|---|---|---|---|---|---|
| 표 준 풍 량 | m3/min | 450 | 500 | 600 | 700 | ||
| m3/h | 27,000 | 30,000 | 36,000 | 42,000 | |||
| 풍 량 범 위 | m3/min | 368~534 | 409~594 | 490~713 | 572~831 | ||
| m3/h | 22,060~ | 24,510~ | 29,420~ | 34,320~ | |||
| 32,060 | 35,630 | 42,750 | 49,870 | ||||
| 송풍기 | 급기 | Air-Foil | #DS | 4 1/2 | 5 | 5 1/2 | 6 |
| 전동기 | Kw | 15.0 | 15.0 | 18.8 | 18.8 | ||
| 정압 | mmAq | 100 | 100 | 100 | 100 | ||
| PA | 980 | 980 | 980 | 980 | |||
| 환기 | Sirocco | #DS | 4 1/2 | 4 1/2 | 5 | 5 1/2 | |
| 전동기 | Kw | 11.3 | 11.3 | 11.3 | 11.3 | ||
| 정 압 | mmAq | 45 | 45 | 45 | 45 | ||
| PA | 441 | 441 | 441 | 441 | |||
| 코일 | 냉방능력 | 냉수 | Kcal/h | 200,000 | 210,000 | 255,000 | 300,000 |
| Kw | 232.6 | 244.2 | 296.5 | 348.8 | |||
| 난방능력 | 증기 | Kcal/h | 315,000 | 351,000 | 424,000 | 497,000 | |
| Kw | 366.3 | 408.1 | 493.0 | 577.9 | |||
| 온수 | Kcal/h | 260,000 | 290,000 | 350,000 | 410,000 | ||
| Kw | 302.3 | 337.2 | 407.0 | 476.7 | |||
| 치수 | Pass(H) | 32(1,219) | 40(1,524) | 22(838) | 24(915) | ||
| xLx수량 | x2500x1 | x2200x1 | x2200x2 | x2550x2 | |||
| 정면 면적 | m2 | 3.05 | 3.35 | 3.69 | 4.66 | ||
| 폐열회수 열교환기 |
형식 | - | |||||
| 배기풍량 | m3/min | 135 | 150 | 180 | 210 | ||
| 외기풍량 | m3/min | 135 | 150 | 180 | 210 | ||
| 필터 | 배열 | 단 x 열 | 2 x 4 | 2.5 x 3.5 | 3 x 3.5 | 3 x 4. | |
| 610 x 610 | EA | 8 | 6 | 9 | 12 | ||
| 305 x 610 | EA | 0 | 5 | 3 | 0 | ||
| 305 X 305 | EA | 0 | 1 | 0 | 0 | ||
| 정면면적 | m2 | 2.98 | 3.26 | 3.91 | 4.47 | ||
| 표준가습량 | Kg/h | 55 | 55 | 73 | 80 | ||
| 접속관경 | 냉.온 수입출구관 | Ax수량 | 100x1 | 100x1 | 100x2 | 100x2 | |
| 증기 공급관 | Ax수량 | 80x1 | 80x1 | 65x2 | 80x2 | ||
| 증기 환수관 | Ax수량 | 40x1 | 40x1 | 40x2 | 40x2 | ||
| 규격 / 모델명 | T1AH-S0800 | T1AH-S0900 | T1AH-S1000 | T1AH-S1100 | |||
|---|---|---|---|---|---|---|---|
| 표 준 풍 량 | m3/min | 800 | 900 | 1,000 | 1,100 | ||
| m3/h | 48,000 | 54,000 | 60,000 | 66,000 | |||
| 풍 량 범 위 | m3/min | 654~950 | 735~1,069 | 817~1,188 | 899~1,306 | ||
| m3/h | 39,220~ | 44,120~ | 49,020~ | 53,920~ | |||
| 57,000 | 64,120 | 71,250 | 78,370 | ||||
| 송풍기 | 급기 | Air-Foil | #DS | 6 | 7 | 7 | 8 |
| 전동기 | Kw | 22.5 | 30.0 | 30.0 | 30.0 | ||
| 정압 | mmAq | 100 | 100 | 100 | 100 | ||
| PA | 980 | 980 | 980 | 980 | |||
| 환기 | Sirocco | #DS | 6 | 6 | 7 | 7 | |
| 전동기 | Kw | 15.0 | 15.0 | 15.0 | 18.8 | ||
| 정 압 | mmAq | 45 | 45 | 45 | 45 | ||
| PA | 441 | 441 | 441 | 441 | |||
| 코일 | 냉방능력 | 냉수 | Kcal/h | 340,000 | 380,000 | 420,000 | 460,000 |
| Kw | 395.3 | 441.9 | 488.4 | 534.9 | |||
| 난방능력 | 증기 | Kcal/h | 557,000 | 630,000 | 691,000 | 752,000 | |
| Kw | 647.7 | 732.6 | 803.5 | 874.4 | |||
| 온수 | Kcal/h | 460,000 | 520,000 | 570,000 | 620,000 | ||
| Kw | 534.9 | 604.7 | 662.8 | 720.9 | |||
| 치수 | Pass(H) | 24(915) | 24(915) | 24(915) | 28(1,067) | ||
| xLx수량 | x2900x2 | x3300x2 | x3650x2 | x3450x2 | |||
| 정면 면적 | m2 | 5.30 | 6.04 | 6.68 | 7.36 | ||
| 폐열회수 열교환기 |
형식 | - | |||||
| 배기풍량 | m3/min | 240 | 270 | 300 | 330 | ||
| 외기풍량 | m3/min | 240 | 270 | 300 | 330 | ||
| 필터 | 배열 | 단 x 열 | 3 x 4.5 | 3 x 5.5 | 3 x 6 | 3.5 x 5.5 | |
| 610 x 610 | EA | 12 | 15 | 18 | 15 | ||
| 305 x 610 | EA | 3 | 3 | 0 | 8 | ||
| 305 X 305 | EA | 0 | 0 | 0 | 1 | ||
| 정면면적 | m2 | 5.02 | 6.14 | 6.70 | 7.16 | ||
| 표준가습량 | Kg/h | 102 | 118 | 122 | 135 | ||
| 접속관경 | 냉.온 수입출구관 | Ax수량 | 100x2 | 100x2 | 100x2 | 125x2 | |
| 증기 공급관 | Ax수량 | 80x2 | 80x2 | 80x2 | 80x2 | ||
| 증기 환수관 | Ax수량 | 40x2 | 40x2 | 40x2 | 40x2 | ||
| 모델/규격명 | T1AH-S1200 | T1AH-S1300 | T1AH-S1400 | T1AH-S1500 | ||||
|---|---|---|---|---|---|---|---|---|
| 표 준 풍 량 | m3/min | 1,200 | 1,300 | 1,400 | 1,500 | |||
| m3/h | 72,000 | 78,000 | 84,000 | 90,000 | ||||
| 풍 량 범 위 | m3/min | 981~1,425 | 1,062~1,544 | 1,144~1,662 | 1,226~1,781 | |||
| m3/h | 58,830~ | 63,730~ | 68,630 | 73,530 | ||||
| 85,490 | 92,620 | 99,740 | 106,870 | |||||
| 송풍기 | 급기 | Air-Foil | #DS | 8 | 8 | 8 | 9 | |
| 전동기 | Kw | 30.0 | 37.5 | 37.5 | 37.5 | |||
| 정압 | mmAq | 100 | 100 | 100 | 100 | |||
| PA | 980 | 980 | 980 | 980 | ||||
| 환기 | Sirocco | #DS | 7 | 8 | 8 | 8 | ||
| 전동기 | Kw | 18.8 | 18.8 | 22.5 | 22.5 | |||
| 정 압 | mmAq | 45 | 45 | 45 | 45 | |||
| PA | 441 | 441 | 441 | 441 | ||||
| 코일 | 냉방능력 | 냉수 | Kcal/h | 500,000 | 540,000 | 580,000 | 620,000 | |
| Kw | 581.4 | 627.9 | 674.4 | 720.9 | ||||
| 난방능력 | 증기 | Kcal/h | 824,000 | 873,000 | 921,000 | 970,000 | ||
| Kw | 958.1 | 1,015.1 | 1,070.9 | 1,127.9 | ||||
| 온수 | Kcal/h | 680,000 | 720,000 | 760,000 | 800,000 | |||
| Kw | 790.7 | 837.2 | 883.7 | 930.2 | ||||
| 치수 | Pass(H) | 28(1,067) | 32(1,219) | 32(1,219) | 32(1,219) | |||
| xLx수량 | x3750x2 | x3600x2 | x3850x2 | x4100x2 | ||||
| 정면 면적 | m2 | 8.00 | 8.78 | 9.39 | 10.00 | |||
| 폐열회수 | 열교환기 | 형식 | - | |||||
| 배기풍량 | m3/min | 360 | 390 | 420 | 450 | |||
| 외기풍량 | m3/min | 360 | 390 | 420 | 450 | |||
| 필터 | 배열 | 단 x 열 | 3.5 x 6 | 4 x 6 | 4 x 6.5 | 4 x 6.5 | ||
| 610 x 610 | EA | 18 | 24 | 24 | 24 | |||
| 305 x 610 | EA | 6 | 0 | 4 | 4 | |||
| 305 X 305 | EA | 0 | 0 | 0 | 0 | |||
| 정면면적 | m2 | 7.81 | 8.93 | 9.67 | 9.67 | |||
| 표준가습량 | Kg/h | 145 | 159 | 171 | 184 | |||
| 접속관경 | 냉.온 수입출구관 | Ax수량 | 125x2 | 125x2 | 125x2 | 125x2 | ||
| 증기 공급관 | Ax수량 | 80x2 | 80x4 | 80x4 | 80x4 | |||
| 증기 환수관 | Ax수량 | 40x2 | 40x4 | 40x4 | 40x4 | |||
※ 규격 및 사양은 제품의 향상 등으로 사전예고 없이 변경될 경우가 있습니다.
운전조건
냉각코일 입구공기 온도 : 27°C DB, 21°C WB
냉수 입구 수온: 7 ºC 냉수 입출구 온도차 : 5°C
증기코일 입구공기 온도: 15°C DB, 9°C WB, 증기압력 : 0.35 kg/cm2, 2ROW 기준
온수코일 입구공기 온도: 15°C DB, 9°C WB, 온수 입구 수온 : 60°C, 온수 입출구 온도차 : 5°C
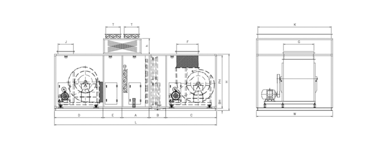
수평형 (Horizontal Type)
| 모 델 명 | A | B | C | E | L | W | H | PH | BH | F | G | J | K | h | T |
|---|---|---|---|---|---|---|---|---|---|---|---|---|---|---|---|
| T1AH-S0045-R | 660 | 490 | 535 | 660 | 2,345 | 950 | 1,250 | 1,115 | 100 | 300 | 340 | 370 | 650 | - | 370 |
| T1AH-S0100-R | 1,000 | 700 | 1,250 | 650 | 3,600 | 1,400 | 1,150 | 990 | 100 | 380 | 500 | 250 | 1,100 | 500 | 320 |
| T1AH-S0150-R | 1,000 | 700 | 1,400 | 650 | 3,750 | 1,450 | 1,300 | 1,140 | 100 | 455 | 600 | 350 | 1,150 | 600 | 470 |
| T1AH-S0200-R | 1,000 | 700 | 1,500 | 650 | 3,850 | 1,600 | 1,500 | 1,340 | 100 | 535 | 700 | 400 | 1,300 | 600 | 470 |
| T1AH-S0250-R | 1,000 | 700 | 1,500 | 650 | 3,850 | 1,800 | 1,600 | 1,440 | 100 | 535 | 700 | 450 | 1,500 | 600 | 470 |
| T1AH-S0300-R | 1,000 | 700 | 1,700 | 650 | 4,050 | 2,050 | 1,600 | 1,440 | 100 | 610 | 800 | 450 | 1,750 | 600 | 470 |
| T1AH-S0350-R | 1,000 | 700 | 1,700 | 650 | 4,050 | 2,350 | 1,600 | 1,440 | 100 | 610 | 800 | 450 | 2,050 | 600 | 470 |
| T1AH-S0400-R | 1,000 | 700 | 1,800 | 650 | 4,150 | 2,600 | 1,650 | 1,490 | 100 | 685 | 900 | 450 | 2,300 | 600 | 470 |
| T1AH-S0450-R | 1,000 | 700 | 1,800 | 650 | 4,150 | 2,950 | 1,750 | 1,590 | 100 | 685 | 900 | 450 | 2,650 | 600 | 470 |
| T1AH-S0500-R | 1,150 | 700 | 1,900 | 800 | 4,550 | 2,650 | 1,900 | 1,740 | 100 | 760 | 1,000 | 550 | 2,350 | 650 | 620 |
| T1AH-S0600-R | 1,150 | 700 | 2,050 | 800 | 4,700 | 2,650 | 2,200 | 2,040 | 100 | 840 | 1,100 | 650 | 2,350 | 650 | 620 |
| T1AH-S0700-R | 1,150 | 700 | 2,150 | 800 | 4,800 | 3,000 | 2,350 | 2,190 | 100 | 915 | 1,200 | 650 | 2,700 | 650 | 620 |
| T1AH-S0800-R | 1,150 | 700 | 2,150 | 800 | 4,800 | 3,350 | 2,350 | 2,190 | 100 | 915 | 1,200 | 700 | 3,000 | 650 | 720 |
| T1AH-S0900-R | 1,300 | 700 | 2,450 | 1,050 | 5,500 | 3,750 | 2,350 | 2,190 | 100 | 1,065 | 1,400 | 750 | 3,000 | 700 | 770 |
| T1AH-S1000-R | 1,300 | 700 | 2,450 | 1,050 | 5,500 | 4,100 | 2,450 | 2,290 | 100 | 1,065 | 1,400 | 850 | 3,000 | 700 | 770 |
| T1AH-S1100-R | 1,300 | 700 | 2,600 | 1,050 | 5,650 | 3,950 | 2,650 | 2,490 | 100 | 1,220 | 1,600 | 950 | 3,000 | 700 | 770 |
| T1AH-S1200-R | 1,450 | 700 | 2,600 | 1,200 | 5,950 | 4,250 | 2,650 | 2,490 | 100 | 1,220 | 1,600 | 1,000 | 3,000 | 750 | 920 |
| T1AH-S1300-R | 1,450 | 700 | 2,600 | 1,200 | 5,950 | 4,100 | 2,950 | 2,790 | 100 | 1,220 | 1,600 | 1,100 | 3,000 | 750 | 920 |
| T1AH-S1400-R | 1,450 | 700 | 2,600 | 1,200 | 5,950 | 4,350 | 2,950 | 2,790 | 100 | 1,220 | 1,600 | 1,200 | 3,000 | 750 | 920 |
| T1AH-S1500-R | 1,400 | 700 | 2,950 | 1,250 | 6,300 | 4,600 | 2,950 | 2,790 | 100 | 1,370 | 1,800 | 1,250 | 3,000 | 750 | 920 |
수평형 (Horizontal Type)
| 모 델 명 | A | B | C | D | E | L | W | H | PH | BH | F | G | J | K | h | T |
|---|---|---|---|---|---|---|---|---|---|---|---|---|---|---|---|---|
| T1AH-S0045 | 660 | 490 | 535 | 545 | 660 | 2,890 | 950 | 1,250 | 1,115 | 100 | 300 | 340 | 370 | 650 | - | 370 |
| T1AH-S0100 | 1,000 | 700 | 1,250 | 1,200 | 650 | 4,800 | 1,400 | 1,150 | 990 | 100 | 380 | 500 | 250 | 1,100 | 500 | 320 |
| T1AH-S0150 | 1,000 | 700 | 1,400 | 1,300 | 650 | 5,050 | 1,450 | 1,300 | 1,140 | 100 | 455 | 600 | 350 | 1,150 | 600 | 470 |
| T1AH-S0200 | 1,000 | 700 | 1,500 | 1,400 | 650 | 5,250 | 1,600 | 1,500 | 1,340 | 100 | 535 | 700 | 400 | 1,300 | 600 | 470 |
| T1AH-S0250 | 1,000 | 700 | 1,500 | 1,550 | 650 | 5,400 | 1,800 | 1,600 | 1,440 | 100 | 535 | 700 | 450 | 1,500 | 600 | 470 |
| T1AH-S0300 | 1,000 | 700 | 1,700 | 1,550 | 650 | 5,600 | 2,050 | 1,600 | 1,440 | 100 | 610 | 800 | 450 | 1,750 | 600 | 470 |
| T1AH-S0350 | 1,000 | 700 | 1,700 | 1,650 | 650 | 5,700 | 2,350 | 1,600 | 1,440 | 100 | 610 | 800 | 450 | 2,050 | 600 | 470 |
| T1AH-S0400 | 1,000 | 700 | 1,800 | 1,650 | 650 | 5,800 | 2,600 | 1,650 | 1,490 | 100 | 685 | 900 | 450 | 2,300 | 600 | 470 |
| T1AH-S0450 | 1,000 | 700 | 1,800 | 1,850 | 650 | 6,000 | 2,950 | 1,750 | 1,590 | 100 | 685 | 900 | 450 | 2,650 | 600 | 470 |
| T1AH-S0500 | 1,150 | 700 | 1,900 | 1,850 | 800 | 6,400 | 2,650 | 1,900 | 1,740 | 100 | 760 | 1,000 | 550 | 2,350 | 650 | 620 |
| T1AH-S0600 | 1,150 | 700 | 2,050 | 1,950 | 800 | 6,650 | 2,650 | 2,200 | 2,040 | 100 | 840 | 1,100 | 650 | 2,350 | 650 | 620 |
| T1AH-S0700 | 1,150 | 700 | 2,150 | 2,050 | 800 | 6,850 | 3,000 | 2,350 | 2,190 | 100 | 915 | 1,200 | 650 | 2,700 | 650 | 620 |
| T1AH-S0800 | 1,150 | 700 | 2,150 | 2,150 | 800 | 6,950 | 3,350 | 2,350 | 2,190 | 100 | 915 | 1,200 | 700 | 3,000 | 650 | 720 |
| T1AH-S0900 | 1,300 | 700 | 2,450 | 2,150 | 1,050 | 7,650 | 3,750 | 2,350 | 2,190 | 100 | 1,065 | 1,400 | 750 | 3,000 | 700 | 770 |
| T1AH-S1000 | 1,300 | 700 | 2,450 | 2,400 | 1,050 | 7,900 | 4,100 | 2,450 | 2,290 | 100 | 1,065 | 1,400 | 850 | 3,000 | 700 | 770 |
| T1AH-S1100 | 1,300 | 700 | 2,600 | 2,450 | 1,050 | 8,100 | 3,950 | 2,650 | 2,490 | 100 | 1,220 | 1,600 | 950 | 3,000 | 700 | 770 |
| T1AH-S1200 | 1,450 | 700 | 2,600 | 2,450 | 1,200 | 8,400 | 4,250 | 2,650 | 2,490 | 100 | 1,220 | 1,600 | 1,000 | 3,000 | 750 | 920 |
| T1AH-S1300 | 1,450 | 700 | 2,600 | 2,600 | 1,200 | 8,550 | 4,100 | 2,950 | 2,790 | 100 | 1,220 | 1,600 | 1,100 | 3,000 | 750 | 920 |
| T1AH-S1400 | 1,450 | 700 | 2,600 | 2,600 | 1,200 | 8,550 | 4,350 | 2,950 | 2,790 | 100 | 1,220 | 1,600 | 1,200 | 3,000 | 750 | 920 |
| T1AH-S1500 | 1,400 | 700 | 2,950 | 2,600 | 1,250 | 8,900 | 4,600 | 2,950 | 2,790 | 100 | 1,370 | 1,800 | 1,250 | 3,000 | 750 | 920 |